|
*Архитектурный проект дома - титульный лист - общие данные + ТЭП - пояснительная записка - привязка дома к участку - план фундамента - кладочные планы - планы с мебелью - фасады с ведомостью отделки - ведомость окон и дверей - план кровли - разрезы - эскиз забора - объемное решение * консультации в процессе строительства проект: |
699 BYN |
|
* Это ПРИМЕРНАЯ стоимость строительства коробки дома от проверенной бригады! - подготовка участка (снятие плодородного грунта) - устройство фундаментов (вода и канализация в фундаменте) - возведение стен и перегородок - устройство перекрытий - устройство монолитных поясов и перемычек - монолитная лестница - монтаж стропильной системы - устройство кровли Указана ПРИМЕРНАЯ стоимость материалов и работ. Для более точной информации по смете необходимо выполнить детальной рассчёт непосредственно строительной организацией! cтоимость строительства: |
~ 49 500$ |
| срок разработки КР: | от 2 месяцев |
| площадь дома: | 99 м2 |
| гараж: | Нет |
| кол-во спален: | 1 |
| кол-во санузлов: | 1 |
| фундамент: | Геология |
| материал стен: | Блоки |
| перекрытие: | Балки |
| покрытие кровли: | Гибкая черепица |
| тип кровли: | Четырехскатная |
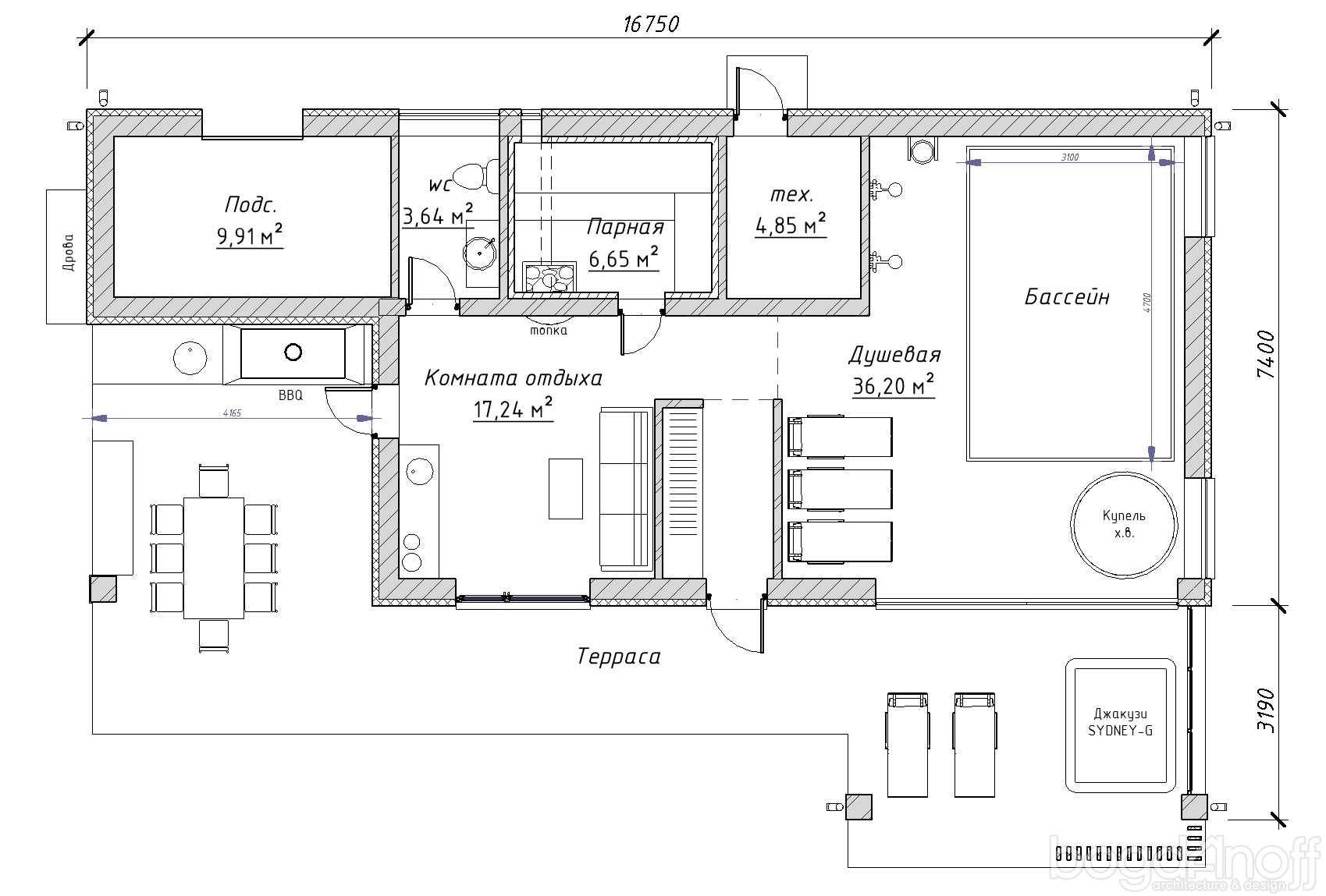
Представляем проект комфортабельной бани площадью 99 квадратных метра, идеально подходящей для полноценного отдыха.
Центром релаксации станет просторная терраса с джакузи и оборудованной зоной барбекю. Внутри вас ждет уютная комната отдыха для общения.
Сердцем бани является классическая парная, а для контрастных процедур предназначена душевая с большим бассейном и деревянной купелью.
Для удобства предусмотрен отдельный санузел и функциональное подсобное помещение.
Данная планировка обеспечивает логичное зонирование и комфортное использование.
Этот проект сочетает лучшие традиции парения с современными возможностями для отдыха.
Мы подобрали несколько готовых проектов, которые смогут Вас заинтересовать
Подборка полезных статей, которые помогут вам в постройке дома
Республика Беларусь,
Минский район, Щомыслицкий
сельсовет 16, каб. 21 (3 этаж)
+375 29 596-79-74
Viber, WhatsApp, Telegram