|
*Архитектурный проект дома - титульный лист - общие данные + ТЭП - пояснительная записка - привязка дома к участку - план фундамента - кладочные планы - планы с мебелью - фасады с ведомостью отделки - ведомость окон и дверей - план кровли - разрезы - эскиз забора - объемное решение * консультации в процессе строительства проект: |
499 BYN |
|
* Это ПРИМЕРНАЯ стоимость строительства коробки дома от проверенной бригады! - подготовка участка (снятие плодородного грунта) - устройство фундаментов (вода и канализация в фундаменте) - возведение стен и перегородок - устройство перекрытий - устройство монолитных поясов и перемычек - монолитная лестница - монтаж стропильной системы - устройство кровли Указана ПРИМЕРНАЯ стоимость материалов и работ. Для более точной информации по смете необходимо выполнить детальной рассчёт непосредственно строительной организацией! cтоимость строительства: |
~ 42 750$ |
| срок разработки КР: | 2 месяца |
| площадь дома: | 90 м2 |
| гараж: | Нет |
| кол-во спален: | 3 |
| кол-во санузлов: | 1 |
| фундамент: | Геология |
| материал стен: | Блоки |
| перекрытие: | Деревянные балки |
| покрытие кровли: | Металлочерепица |
| тип кровли: | Четырехскатная |
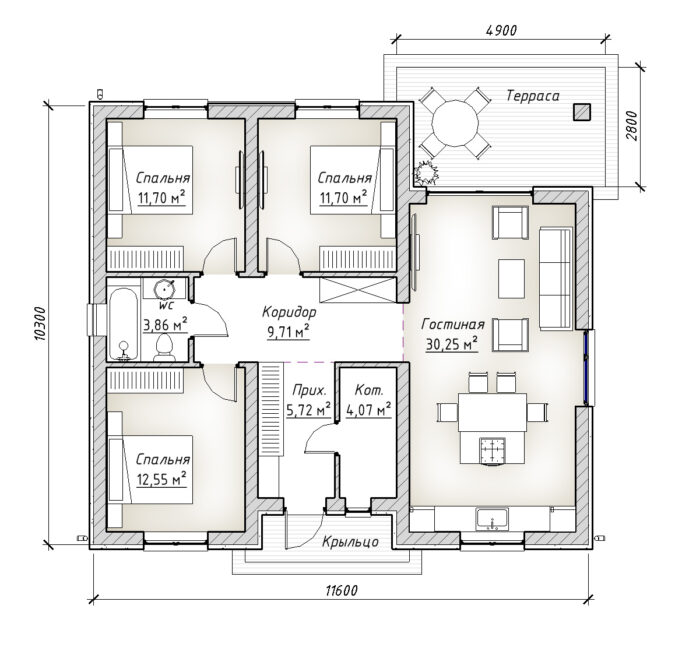
Проект одноэтажного компактного дома общей площадью 90 квадратных метров предлагает комфортное и функциональное проживание для семьи.
Архитектурный облик здания формируется под четырехскатной крышей, придающей ему завершенный и солидный вид.
Планировка дома рационально организована: при входе расположена котельная и коридор, из которого можно попасть в жилые помещения.
Центром дома становится просторная гостиная, совмещенная с кухней, из которой предусмотрен выход на террасу, создавая единство с окружающим пространством.
Для обеспечения уединения и комфорта в доме запроектированы три изолированные спальни, а также общий санузел.
Максимально бюджетный и оптимальный вариант дома для строительства на загородном участке
Мы подобрали несколько готовых проектов, которые смогут Вас заинтересовать
Подборка полезных статей, которые помогут вам в постройке дома
Республика Беларусь,
Минский район, Щомыслицкий
сельсовет 16, каб. 21 (3 этаж)
+375 29 596-79-74
Viber, WhatsApp, Telegram