|
*Архитектурный проект дома - титульный лист - общие данные + ТЭП - пояснительная записка - привязка дома к участку - план фундамента - кладочные планы - планы с мебелью - фасады с ведомостью отделки - ведомость окон и дверей - план кровли - разрезы - эскиз забора - объемное решение * консультации в процессе строительства проект: |
699 BYN |
|
* Это ПРИМЕРНАЯ стоимость строительства коробки дома от проверенной бригады! - подготовка участка (снятие плодородного грунта) - устройство фундаментов (вода и канализация в фундаменте) - возведение стен и перегородок - устройство перекрытий - устройство монолитных поясов и перемычек - монолитная лестница - монтаж стропильной системы - устройство кровли Указана ПРИМЕРНАЯ стоимость материалов и работ. Для более точной информации по смете необходимо выполнить детальной рассчёт непосредственно строительной организацией! cтоимость строительства: |
~ 91 200$ |
| срок разработки КР: | от 2 месяцев |
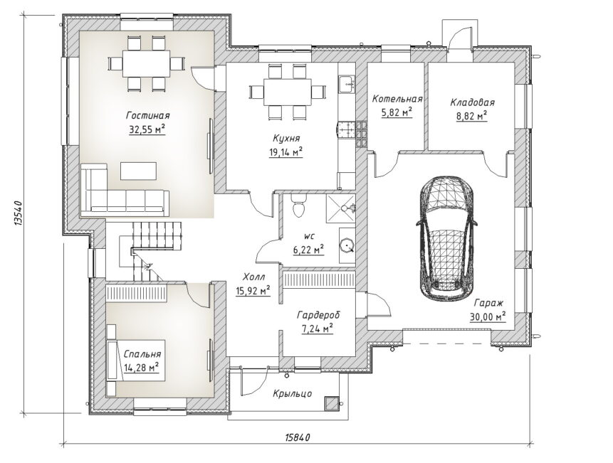
| площадь дома: | 198 м2 |
| гараж: | 1 авто |
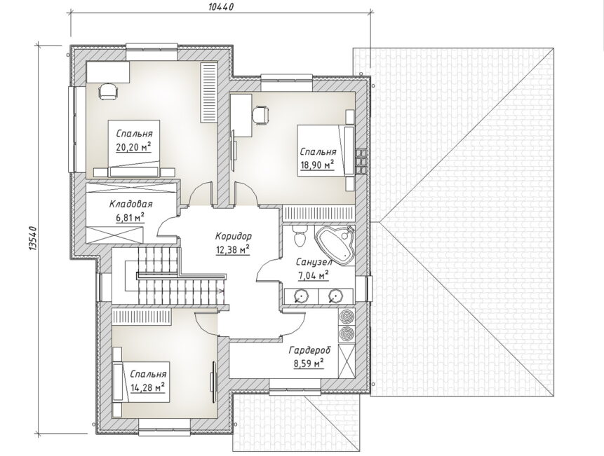
| кол-во спален: | 4 |
| кол-во санузлов: | 2 |
| фундамент: | Геология |
| материал стен: | Блоки |
| перекрытие: | железобетон |
| покрытие кровли: | Металлочерепица |
| тип кровли: | Четырехскатная |
Обретите свой семейный очаг: Проект классического дома 228 м² с гаражом
Представляем проект дома, где каждая деталь продумана для вашего комфорта. Это не просто квадратные метры, это гармония стиля, уюта и практичности.
Почему этот проект стоит вашего внимания?
Безупречная классика: Теплая клинкерная плитка, окна со шпросами и изящная крыша. Ваш дом будет выглядеть респектабельно и стильно через десятилетия.
Разумная планировка: Четкое разделение на повседневную (1 этаж) и приватную (2 этаж) зоны. Отдельная кухня, изолированная от шума гостиной.
Максимум полезной площади: Никаких пустых коридоров. Гараж, кладовые, гардероб — всё для того, чтобы жилые комнаты были свободными от хранения.
Готово для семьи: 3 основные спальни + гостевая комната. Достаточно места для детей, родителей и частых визитов родных и друзей.
Всесезонный комфорт: Встроенный гараж избавит от необходимости очищать машину ото льда и снега. Все технические помещения (котельная, кладовая) сконцентрированы в одной зоне.
Мы подобрали несколько готовых проектов, которые смогут Вас заинтересовать
Подборка полезных статей, которые помогут вам в постройке дома
Республика Беларусь,
Минский район, Щомыслицкий
сельсовет 16, каб. 21 (3 этаж)
+375 29 596-79-74
Viber, WhatsApp, Telegram