|
*Архитектурный проект дома - титульный лист - общие данные + ТЭП - пояснительная записка - привязка дома к участку - план фундамента - кладочные планы - планы с мебелью - фасады с ведомостью отделки - ведомость окон и дверей - план кровли - разрезы - эскиз забора - объемное решение * консультации в процессе строительства проект: |
799 BYN |
|
* Это ПРИМЕРНАЯ стоимость строительства коробки дома от проверенной бригады! - подготовка участка (снятие плодородного грунта) - устройство фундаментов (вода и канализация в фундаменте) - возведение стен и перегородок - устройство перекрытий - устройство монолитных поясов и перемычек - монолитная лестница - монтаж стропильной системы - устройство кровли Указана ПРИМЕРНАЯ стоимость материалов и работ. Для более точной информации по смете необходимо выполнить детальной рассчёт непосредственно строительной организацией! cтоимость строительства: |
~ 96 000$ |
| срок разработки КР: | КР в наличии (m) |
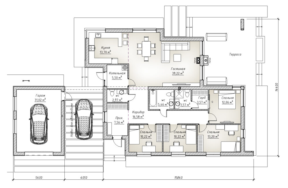
| площадь дома: | 161 м2 |
| гараж: | 1 авто |
| кол-во спален: | 4 |
| кол-во санузлов: | 3 |
| фундамент: | Геология |
| материал стен: | Блоки |
| перекрытие: | Монолитное |
| покрытие кровли: | Мембрана |
| тип кровли: | Плоская |
Этот проект представляет собой образец современной архитектуры, где чистые линии и функциональность сочетаются с уютом и комфортом. Дом отличается строгой геометрией и выразительным фасадом, выполненным в сочетании натуральных материалов.
Ключевые особенности планировки:
Просторная светлая гостиная станет центром притяжения для всей семьи. Из нее предусмотрен прямой выход на террасу, стирая границу между внутренним пространством и двором.
Уютный камин в гостиной создает неповторимую атмосферу тепла и уюта в холодные вечера.
Четыре изолированные спальни обеспечат комфорт всем жителям. Особое внимание уделено хозяйской спальне — это настоящая приватная зона отдыха с собственной ванной комнатой и гардеробной.
Гараж на один автомобиль и дополнительный навес защитят ваши транспортные средства и создадут удобство в любое время года.
Плоская крыша не только завершает современный облик дома, но и открывает потенциал для обустройства зоны отдыха наверху с панорамным видом. Этот проект идеален для тех, кто ценит современный дизайн, практичность и комфорт для жизни.
Мы подобрали несколько готовых проектов, которые смогут Вас заинтересовать
Подборка полезных статей, которые помогут вам в постройке дома
Республика Беларусь,
Минский район, Щомыслицкий
сельсовет 16, каб. 21 (3 этаж)
+375 29 596-79-74
Viber, WhatsApp, Telegram