|
*Архитектурный проект дома - титульный лист - общие данные + ТЭП - пояснительная записка - привязка дома к участку - план фундамента - кладочные планы - планы с мебелью - фасады с ведомостью отделки - ведомость окон и дверей - план кровли - разрезы - эскиз забора - объемное решение * консультации в процессе строительства проект: |
599 BYN |
|
* Это ПРИМЕРНАЯ стоимость строительства коробки дома от проверенной бригады! - подготовка участка (снятие плодородного грунта) - устройство фундаментов (вода и канализация в фундаменте) - возведение стен и перегородок - устройство перекрытий - устройство монолитных поясов и перемычек - монолитная лестница - монтаж стропильной системы - устройство кровли Указана ПРИМЕРНАЯ стоимость материалов и работ. Для более точной информации по смете необходимо выполнить детальной рассчёт непосредственно строительной организацией! cтоимость строительства: |
~ 44 000$ |
| срок разработки КР: | от 2 месяцев |
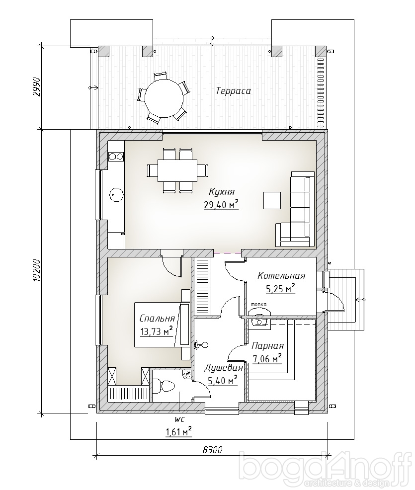
| площадь дома: | 74 м2 |
| гараж: | Нет |
| кол-во спален: | 1 |
| кол-во санузлов: | 1 |
| фундамент: | Геология |
| материал стен: | Блоки |
| перекрытие: | Деревянные балки |
| покрытие кровли: | Металлочерепица |
| тип кровли: | Четырехскатная |
Ваш уютный уголок для идеальной банной процедуры.
Наше уютное строение под классической четырёхскатной крышей создано для полноценного отдыха. Всё продумано для вашего комфорта: после жаркой парной вас ждёт освежающая душевая, а затем отдых в тихой спальне.
Сердце дома — просторная комната отдыха, из которой можно выйти на собственную террасу, чтобы насладиться свежим воздухом. За уют и тепло отвечает собственная мини-котельная.
Идеальный проект гостевого дома для романтического отпуска или отдыха небольшой компании.
Мы подобрали несколько готовых проектов, которые смогут Вас заинтересовать
Подборка полезных статей, которые помогут вам в постройке дома
Республика Беларусь,
Минский район, Щомыслицкий
сельсовет 16, каб. 21 (3 этаж)
+375 29 596-79-74
Viber, WhatsApp, Telegram